Town House for sale in Ossana

Town House for sale in Ossana

650,000 €
343 m²
Surface
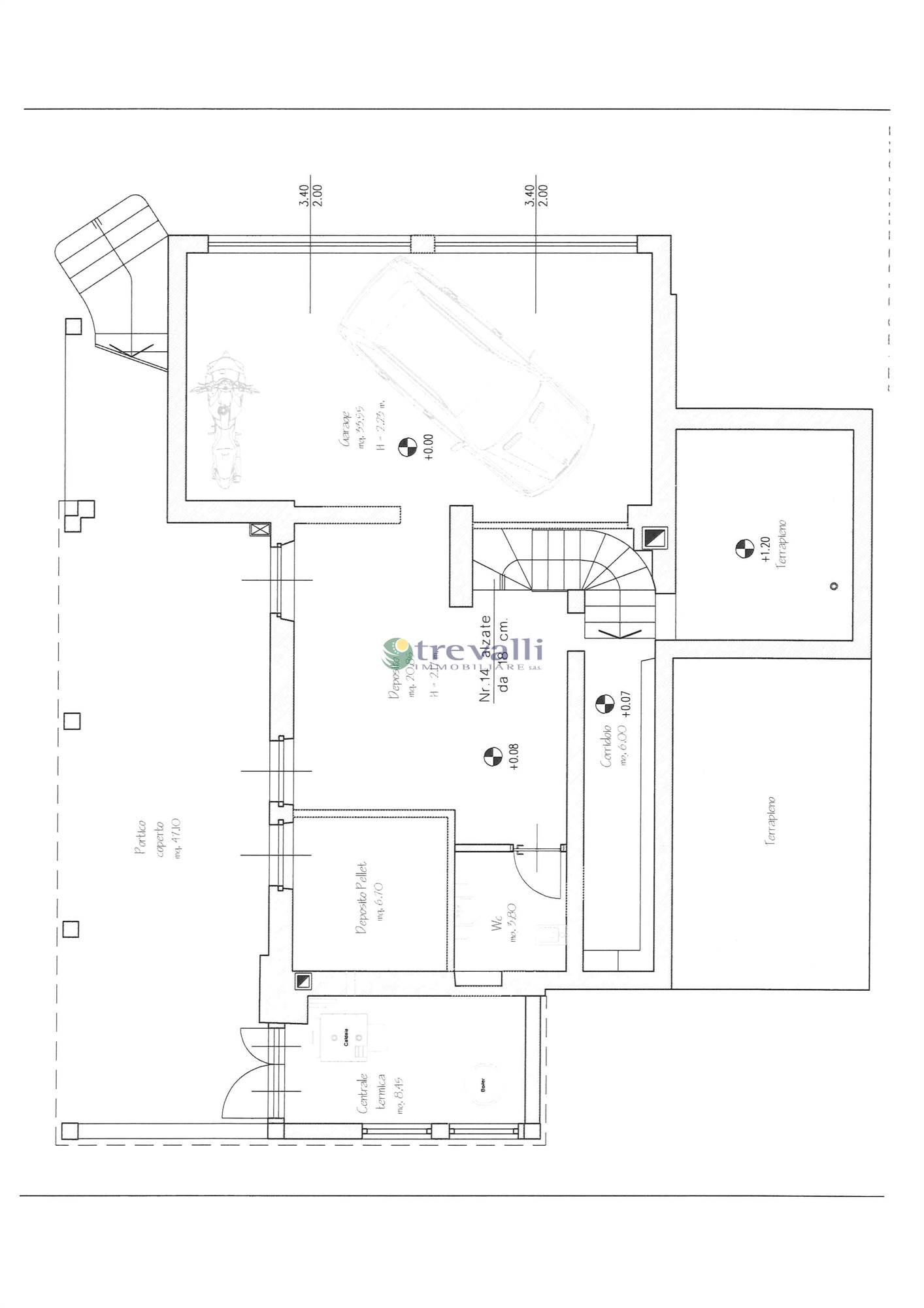
14
Locals
for sale
town house
Ossana [Fucine]
Description
Primal Features
Code:
OSSANA/FEPE
City:
Ossana (Fucine)
Category:
Town House
Locals:
14
Sqm:
343
Energetic class:
G
273.93 kWh/m²a
Property Conditions:
Under Construction
Rank:
Elegant
Position:
Mountain
View:
Mount View
Orientation:
North West South East
Free Sides:
4
Garden:
Private
Furniture:
Not Furnished
Accessories
Flue
Double glasses
Double entrance
Floorplans
Video
Distances
Position
City center200 m
Ski lift4 km
Transport
Metro-bus-tram stop10 m
Information request
Cookie preference